Leave a Message

Thank you for your message. We will be in touch with you shortly.

Explore Our Properties

Property Description

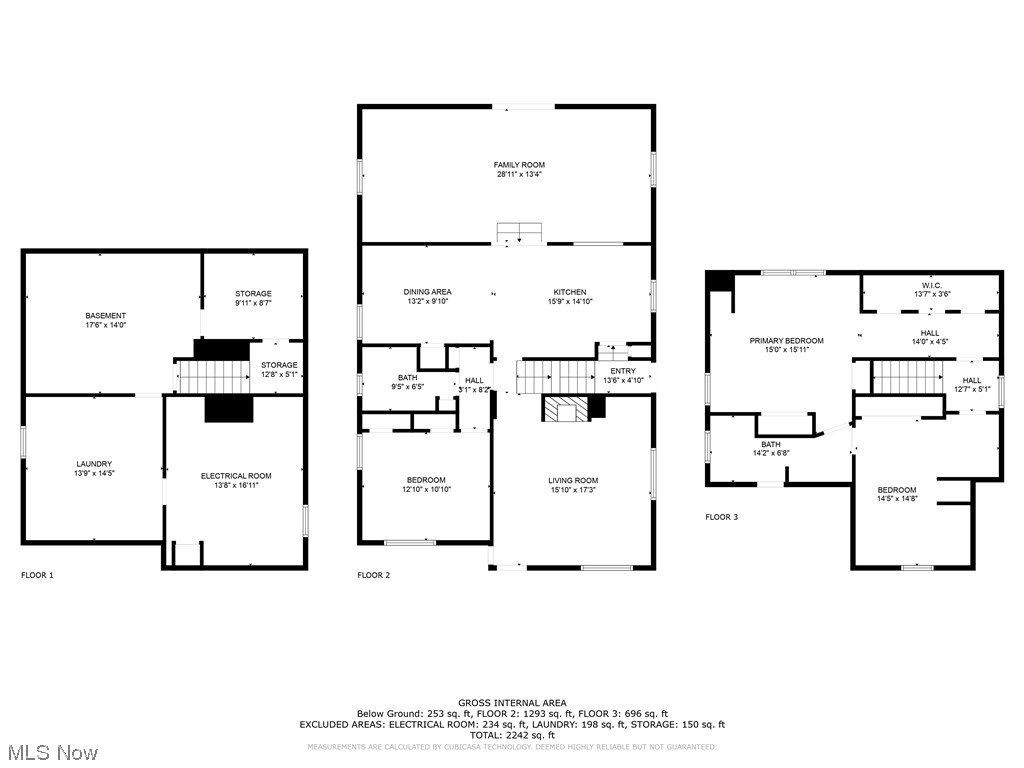
Prepare to be moved by this cape cod style home, boasting curb appeal in the desirable community of Seven Hills. This home sits on nearly an acre giving you a country in a convenient location. The sellers have done so many major upgrades & is just waiting for you to come add your finishing touches. The exterior features new siding, new roof, new gutters, & a new deck. Some other recent updates include: new flooring throughout the majority of the main floor, natural hardwood and fresh paint in the first floor bedroom, new carpet & new windows in the master bedroom upstairs, furnace, a/c, & upgraded ventilation through the chimney. From the moment you enter the door into the living room, you will be impressed by the spacious open feel. The large kitchen & dining room are a blank canvas & perfect for hosting, as well open up to the additional roomy family room that over look the sizeable deck and backyard. As well, there is a bedroom located on the first floor (w/ hardwood floor under the carpet) & an updated full bath. Upstairs features a generous sized master bedroom w/ new carpet, built ins, & two closets with a jack & jill half bath. As well, a second bedroom with a built in frame for a twin bed & many built ins- perfect for a nursery or office. The basement has so much room for storage with a rec room and a finished bonus room. As well, a shower is down there already if you were to want to add another full bath. The space doesn't end there, the breezeway will take you over to the two car garage w/ additional storage above & a back garage door to a stamped patio.

Overview

Property Status
Sold
Lot Size
0.94 Acres
MLS ID
5013860
Property Type
Residential
Year Built
1950

Features & Amenities

Architecture Styles
Cape Cod
Stories
2
Garage Spaces
2.0
Water Source
Public
Roof
Asphalt, Fiberglass
Parking
Direct Access, Paved
Heat Type
Forced Air, Gas
Air Conditioning
Central Air
Laundry Room
In Basement
Appliances
Dishwasher, Microwave, Range, Refrigerator
Other Interior Features
Ceiling Fan(s), Primary Downstairs
Sewer
Public Sewer
Substructure
Block
School District
Parma CSD - 1824
Sales Price
$255,000
Real Estate Tax
$4,714/yr

Downloads

6454 Crossview Road

Schedule a Tour

We would love to help you see this beautiful home! As a full-service brokerage, we can help you tour. Please submit an offer, and answer questions about the buying process.

Enter a valid email

Thank you

for your interest in 6454 Crossview Road, Seven Hills, OH 44131

back to page
6454 Crossview Road
Navigate
6454 Crossview Road
explore in 3d

I'm Interested In

6454 Crossview Road

or
  • CallHannah Pannetti

    License #2020002232

    (216) 403-2447
  • Follow Us On Instagram